Mercedes Sprinter 518 CDI

Hubraum:  2.987 ccm

Kraftstoff:  ~100 ltr Diesel

Leistung:  135 KW

Länge:  7.300 mm

Breite:  2.240 mm

Höhe:  3.320 mm

Leergewicht:  4.190 Kg

Zuladung:  1.110 Kg

zGG:  5.300 Kg

Reisefertig inkl. Füllstoffe und Fahrer

Vorbehaltlich Druckfehler und Irrtümer.

Mercedes Sprinter 518 CDI

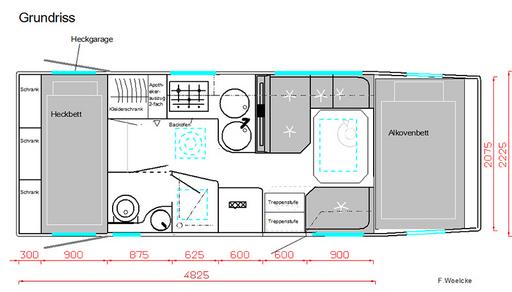
Radstand

4.350 mm

Bauweise

GFK-Verbundplatten 40mm
vollisoliert - kältebrückenfrei - wintertauglich
Deckschichten 2mm GFK-Isolierschaum
PU-RG 50 = 36mm

Sitzplätze

4

Betten

1x 2000 x 900 mm (Heckfestbett)
1x 2000 x 1400 mm (Alkoven)

Heizung

Truma Combi 6 - Gasbetriebene Gebläseumluftheizun
mit integ. Boiler 11ltr.

Boiler

Siehe Heizung

Kühlschrank

108 ltr Kompressorkühlschrank - 12V

Frischwasser

~200 ltr frostgeschützt

Abwasser

~170 ltr frostgeschützt

Gas

44 kg Gastank unterflur
1x 11kg Gasflaschenkasten

Bordbatterie

3x 110Ah AGM (wartungsfrei) = 330Ah

Energiequellen

2x 125Wp = 150Wp + Trennrelais
+ 230V Einspeisung, Gasgenerator

Fenster

Seitz S4 – Doppelacrylglasfenster mit integr. Kombirollo`s

Türen und Klappen

Woelcke