IVECO Daily Autark 4x4

Hubraum:  2.998 ccm

Kraftstoff:  Diesel

Leistung:  176 PS

Länge:  8.300 mm

Breite:  2.350 mm

Höhe:  3.400 mm

Leergewicht:  4.920 Kg

Zuladung:  1.580 Kg

zGG:  6.500 Kg

Reisefertig inkl. Füllstoffe und Fahrer

Vorbehaltlich Druckfehler und Irrtümer.

IVECO Daily Autark 4x4

Getriebe

4x4

Bauweise

GFK-Verbundplatten
vollisoliert - kältebrückenfrei - wintertauglich

Sitzplätze

3

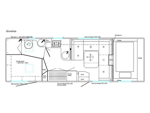
Betten

1x 1900 x 1400 mm Heckbett
1x 2000 x 1200 mm Alkovenbett

Heizung

ALDE-Gasbetriebene Warmwasserheizung

Boiler

In Heizung integriert

Kühlschrank

160 ltr Absorberkühlschrank 12V-230V-Gas

Frischwasser

~300 ltr

Abwasser

~300 ltr

Gas

44 kg Gastank + 1x 11 kg Gasflaschenkasten

Bordbatterie

3x 150 Ah = 450 Ah

Energiequellen

2x 80W Solar, Trennrelais Starter-Bordbatterie
230V Einspeisung - Ladegerät 50 Ah

Fenster

Seitz S4 - Doppelacrylglasfenster mit integr. Kombirollo`s

Türen und Klappen

Woelcke