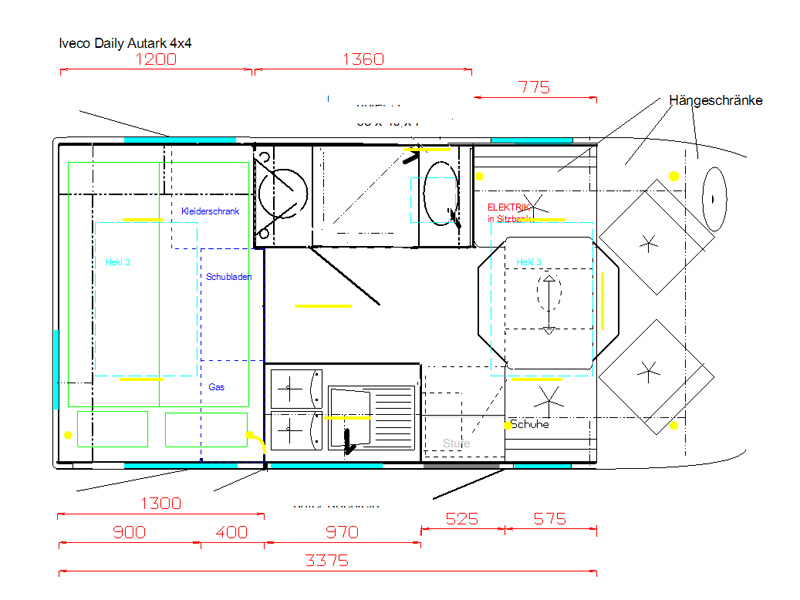
IVECO Daily Autark 4x4
- Expeditionsmobile
Hubraum: 2.998 ccm | Kraftstoff: Diesel | Leistung: 176 PS |
Länge: 5.900 mm | Breite: 2.090 mm | Höhe: 3.300 mm |
Leergewicht: 4.340 Kg | Zuladung: 1.160 Kg | zGG: 5.500 Kg |
| Reisefertig inkl. Füllstoffe und Fahrer Vorbehaltlich Druckfehler und Irrtümer. |
IVECO Daily Autark 4x4
Bauweise | GFK-Verbundplatten |
Sitzplätze | 2 |
Betten | 1x 2000 x 1300 mm (Festbett im Heck) |
Heizung | Zentralgebläseheizung Truma Combi 4 mit integr. 11 ltr Warmwasserboiler |
Boiler | Siehe Heizung |
Kühlschrank | 136 ltr Kompressorkühlschrank |
Frischwasser | 150 ltr + 100 ltr = 250 ltr |
Abwasser | ~70 ltr |
Fäkaltank | Entnehmbare Fäkalkassette |
Gas | 2x 11 kg |
Bordbatterie | 4x 100 Ah - AGM - wartungsfrei = 400 Ah |
Energiequellen | 3x 110W Solar + Trennrelais Starter-Bordbatterie + 230V Einspeisung - Ladegerät 60 Ah |
Fenster | Doppelacrylglasfenster mit integr. Kombirollo`s - Seitz S4 |
Türen und Klappen | Woelcke |
|
|