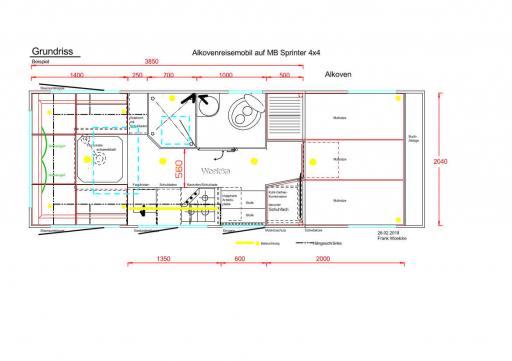
MB Sprinter 519 CDI - 4x4 - Alkovenlängsbett - Hecksitzgruppe

Mercedes Sprinter 519 CDI

Hubraum:  2.987 ccm

Kraftstoff:  ~ 100 ltr Diesel

Leistung:  140 KW

Länge:  6.430 mm

Breite:  2.150 mm

Höhe:  3.300 mm

Leergewicht:  4.250 Kg

Zuladung:  950 Kg

zGG:  5.200 Kg

Reisefertig inkl. Füllstoffe und Fahrer

Vorbehaltlich Druckfehler und Irrtümer.

MB Sprinter 519 CDI - 4x4 - Alkovenlängsbett - Hecksitzgruppe

  • Allrad 4x4 zuschaltbar mit Untersetzungsgetriebe
  • Bereifung: 215/85R16
  • Dieselzusatztank ~ 200 ltr

MB Sprinter 519 CDI - 4x4 - Alkovenlängsbett - Hecksitzgruppe

Fahrzeuginfo

Mercedes Sprinter 519 CDI

Getriebe

Automatikgetriebe

Radstand

3.665 mm

Bauweise

40 mm GFK Verbundplatten - vollisoliert - kältebrückenfrei - wintertauglich
2 mm Deckschichten GFK Isolierschaum PU-RG 50 = 40 mm

Sitzplätze

2 / 4

Betten

2 x 2000 mm Alkovenlängsbetten
1x 2000 x 1350 mm (Umbau Hecksitzgruppe)

Heizung

Truma Combi 6 (gasbetrieben) Umluftzentralheizung mit integr. 10 ltr Boiler

Boiler

siehe Heizung

Kühlschrank

75 / 18 ltr Kompressorkühl - Gefrierschrankkombination

Frischwasser

~ 300 ltr frostgeschützt

Abwasser

~ 150 ltr frostgeschützt

Gas

1 x Gastank 36 kg unterflur + 1x 11 kg

Bordbatterie

2 x 150 Ah - Lithium - wartungsfrei

Energiequellen

Solar 2 x 100 Wp = 220Wp + Ladebooster + 230V Einspeisung

Fenster

Outbound - Echtisoliersicherheitsglas mit Kombirollo`s

Türen und Klappen

Woelcke