518 CDI - Iglhaut 4x4

Woelcke Wohnaufbau

Hubraum:  2.685 ccm

Kraftstoff:  240 ltr Diesel

Leistung:  135 KW

Länge:  6.700 mm

Breite:  2.100 mm

Höhe:  3.550 mm

Leergewicht:  3.960 Kg

Zuladung:  640 Kg

zGG:  4.600 Kg

Reisefertig inkl. Füllstoffe und Fahrer

Vorbehaltlich Druckfehler und Irrtümer.

518 CDI - Iglhaut 4x4

Fahrzeuginfo

Woelcke Wohnaufbau

Getriebe

Allrad 4 x 4

Radstand

3.665 mm

Bauweise

GFK-Verbundplatten 40mm
vollisoliert - kältebrückenfrei - wintertauglich
Deckschichten 2mm GFK-Isolierschaum PU-RG 50 = 36mm

Sitzplätze

3

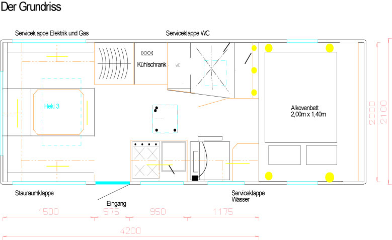
Betten

1x 2000x1400 mm (Alkoven)
1x 2000x1500 mm (Hecksitzgruppe-Heckbett)

Heizung

Truma Combi 6-6 KW-Gasbetriebene Gebläseumluftheizung mit integ. Boiler 11ltr

Boiler

Siehe Heizung

Kühlschrank

142 ltr Absorberkühlschrank
mit 26ltr Frosterfach (12V/230V/Gas)

Frischwasser

300 ltr frostgeschützt

Abwasser

80 ltr frostgeschützt

Gas

36kg Gastank unterflur
+ 2x 11kg Gasflaschenkasten

Bordbatterie

2x 110Ah (wartungsfrei) = 220Ah

Energiequellen

Solar 2x 75Wp = 150Wp + Trennrelais + 230V Einspeisung

Fenster

Seitz S4 – Doppelacrylglasfenster mit integr. Kombirollo`s

Türen und Klappen

Woelcke

Dieselzusatztank

~140ltr

Sonstiges

Differentialsperre Vorderachse
Differentialsperre Hinterachse
Verteilergetriebe Hinterachse
Einzelbereifung