Autark runner XXL - 4x4

Mercedes Sprinter 519 CDI

Hubraum:  2.987 ccm

Kraftstoff:  100 ltr Diesel

Leistung:  140 KW

Länge:  6.900 mm

Breite:  2.000 mm

Höhe:  2.850 mm

Leergewicht:  4.125 Kg

Zuladung:  875 Kg

zGG:  5.000 Kg

Reisefertig inkl. Füllstoffe und Fahrer

Vorbehaltlich Druckfehler und Irrtümer.

Autark runner XXL - 4x4

Fahrzeuginfo

Mercedes Sprinter 519 CDI

Getriebe

Allrad zuschaltbar mit Untersetzungsgetriebe

Radstand

4.350 mm

Bauweise

GFK-Verbundplatten 30mm
vollisoliert - kältebrückenfrei - wintertauglich
Deckschichten 2mm GFK- Isolierschaum PU-RG 50= 26mm

Sitzplätze

4

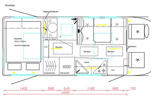
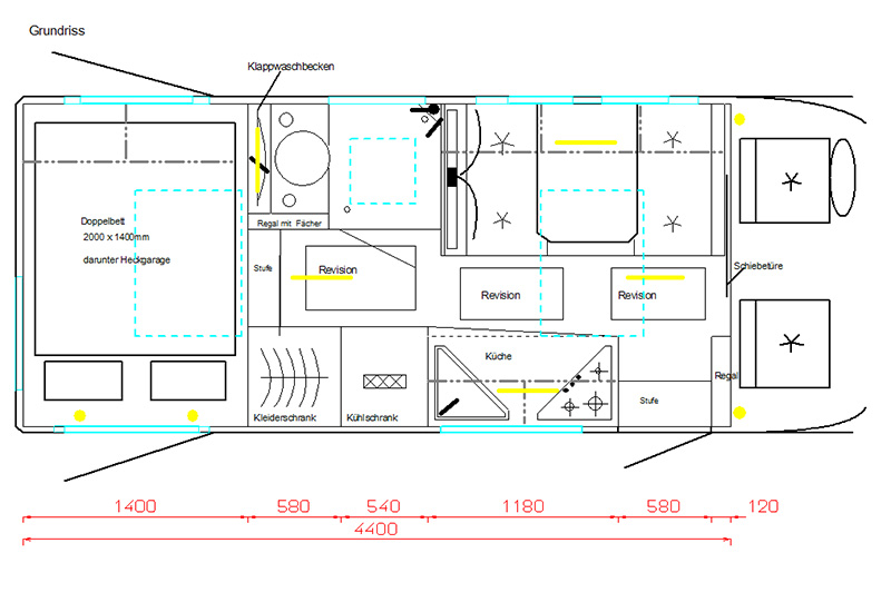
Betten

1x 1920 x 1400 mm (Heckbett)
1x 1900 x 1150 mm (Alkoven)

Heizung

Truma Combi6 E -Gas -und Elektrobetriebene Gebläseumluftheizung mit Boiler 11 ltr

Boiler

Siehe Heizung

Kühlschrank

142 ltr Absorberkühlschrank (12V-230V-Gas)
mit 25 ltr Frosterfach

Frischwasser

200 ltr frostgeschützt

Abwasser

80 ltr frostgeschützt

Gas

44 kg Gastank unterflur + 1x 11kg Gasflasche

Bordbatterie

3x 120 Ah - wartungsfrei = 360 Ah

Energiequellen

Solar 2x 110W + Trennrelais + 230V Einspeisung

Fenster

S4 - Doppelacrylglasfenster mit integr. Kombirollo's

Türen und Klappen

Woelcke